Trusted Turnkey Pallet Rack Solutions. We handle permitting, design, installation, inspections, and repairs — so you can focus on running your facility
Request consultation from our pallet rack specialists.
We’ll respond within 24 hours during business hours.
Our Projects










Types of Pallet Racking Solutions We Offer
As your full turnkey pallet racking partner, we’re with you every step of the way — from engineered drawings and permits to design, installation, and ongoing maintenance. With W.W. Cannon, you get one trusted team to handle it all.
Pallet Racking Solutions Custom Designed
to Fit Your
Operations & Budget
Get the Right Racks for Your Storage Needs
Design & Layout
Our team designs and lays out pallet racking systems tailored to your facility, handling every detail from concept to installation so your operations run at peak efficiency
Permits & Engineered Drawings
We handle the permitting process and provide engineered drawings, making sure your pallet racking project meets all local codes and safety regulations
Project Management and Installation
From start to finish, our team provides full project management and professional installation, ensuring your pallet racking system is completed on time, on budget, and to the highest safety standards
Inspections & Repairs
Our service doesn’t stop after installation — we offer regular inspections and prompt repairs to help you stay compliant with safety regulations and avoid costly downtime
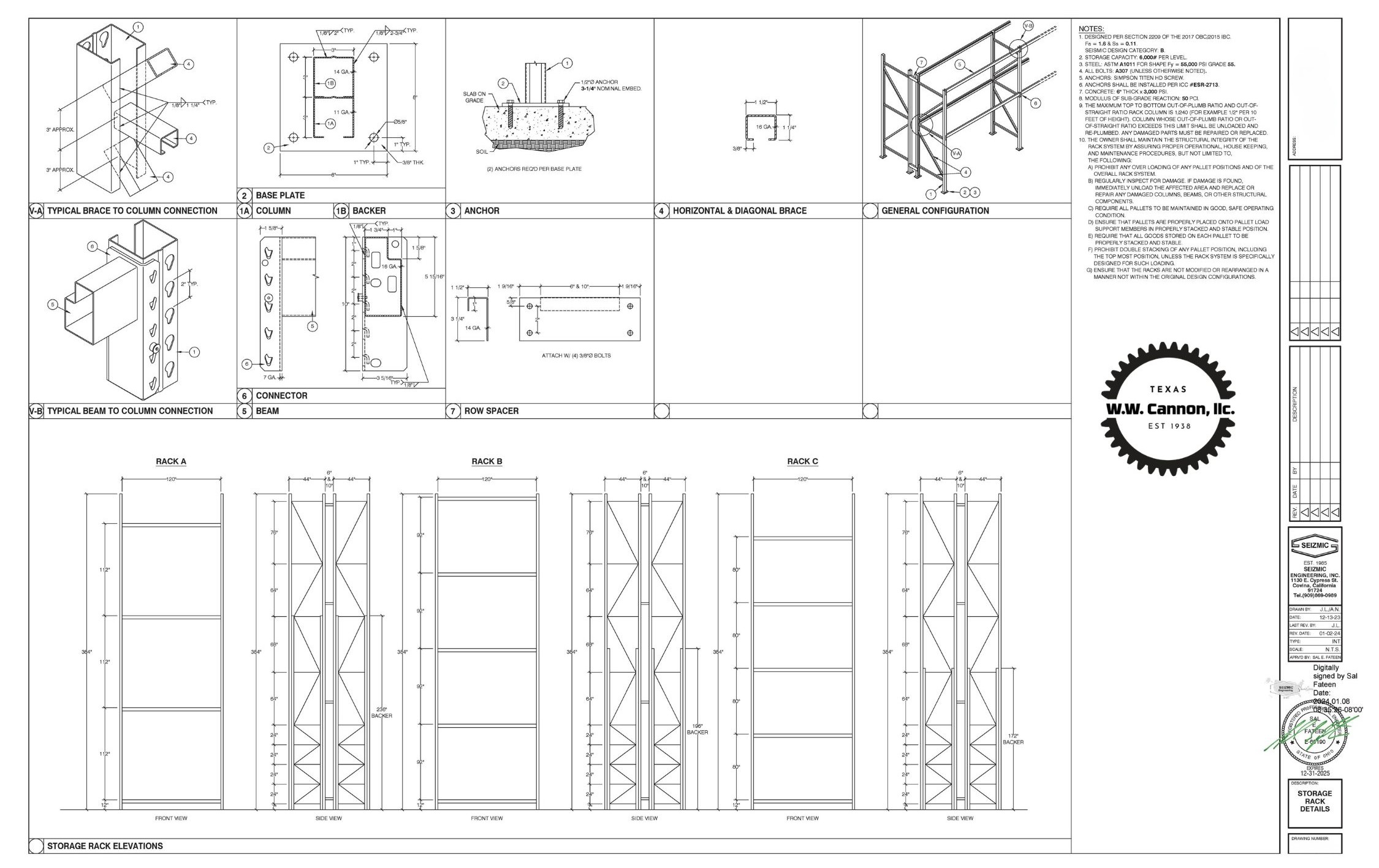
Engineered Drawings & Load Capacity Labels
We provide professionally stamped and sealed engineered drawings along with load capacity labeling to keep your pallet racking systems safe, compliant, and ready for inspection.
Contact Us Today!

Companies Who Choose Us




















Why Partner with Us?
For over 85 years, W.W. Cannon has been the trusted turnkey source for pallet rack warehouse solutions — serving some of the nation’s most recognized companies






Testimonials
WW Canon was great to work with. Doug was our primary contact, and worked really closely with us to ensure the racking we were purchasing solved the problems we were experiencing. The delivery and install was quick and easy. Doug has kept in touch since the install just to check in to make sure everything was working well. Three thumbs up!

“I started working with W. W. Cannon this year in 2021 and have enjoyed working with them. They are always very responsive and meet all my expectations. Their pricing is always reasonable, and this is the reason why they got the contract to provide & install my racking in the new Dallas DC that Lawson Products was building. The racking materials arrived 3 weeks early and installation was performed professionally which gave us no problem in getting us our inspection approval. I would recommend W. W. Cannon for any of your warehouse equipment needs. I would like to personally Thanks Rode Chambers & his team for their outstanding job for making my job easier to manage. I will work with Rode & his team again in future project - even if it's outside the Dallas, TX area.”

I have worked with WW Cannon on several occasions, and always get the best service in the industry

Very pleased with the outcome of everything. We uprighted a new facility in the Dallas/Fort Worth area and I am NOT from Dallas/Fort Worth (CA) so I needed a company that was willing to go the distance with me and partner with the City to get us dialed and permitted. It wasn't a small operation (Pallet Racking, Mecalux Parts Shelving 16ft, Permitting) and Doug Hutchins stayed in the box every step of the way; Planning, Communication and meetings, Partnership with agencies, Execution, and Delivery. We didn't originally have permitting in the plans and when we made the switch, Doug took over and made it very easy for us to accomplish this. As a matter of fact, we had 6 different renditions of what the final product ended up being and Doug was very gracious with all the changes. We narrowed it down to two vendors, W.W. Cannon and Shoppas and the Shoppas guy came out and didn't even follow up after the initial visit. Doug followed up next day and made sure I knew all the options available to me so I made the right choice for my company and we didn't tank any dollars making the wrong decision. I can't thank them enough and I gained 5lbs eating all the Beaver Nuggets they gave me. If you need a real partner to get things done W.W. Cannon and Doug Hutchins will serve you well.








